当サイトは、東急不動産の新築分譲マンションの情報を提供しています。 当サイトのコンテンツをより快適にご利用いただくために、一部JavaScriptを用いた機能を使用しています。 サイトを最適な状態で閲覧いただくにはブラウザのJavaScriptを有効にしてご利用ください。 JavaScriptを無効のままご覧いただいた場合には一部機能がご利用いただけない場合があります。
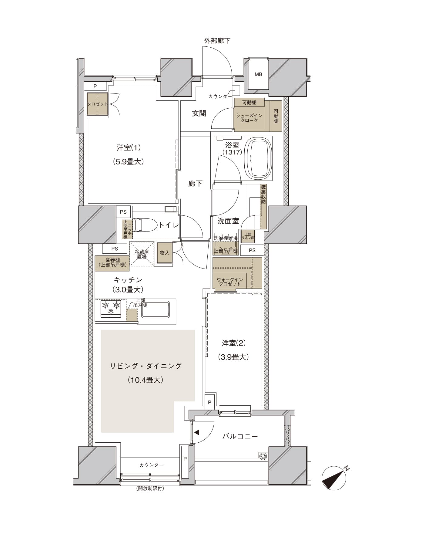
2LDK+WIC+SIC
収納 床暖房 WIC:ウォークインクロゼット、SIC:シューズインクローク
限定MOVIEや間取りをご紹介しております。
物件エントリー
最新の情報をお届けします。
物件エントリー者様限定サイト
エントランス完成予想CG外観完成予想CG
※掲載の間取り図は計画段階のもので、今後変更になる場合がございます。