間取り|<<公式>>ブランズ星が丘テラス | 名古屋市営地下鉄東山線「星ヶ丘」駅 新築分譲マンション|東急不動産の住まい[BRANZ(ブランズ)]

Plan Mainvisual

image

ROOM PLAN

光と曲線が描く、星が丘の美邸たち。

Residence Plan

外観完成予想CG

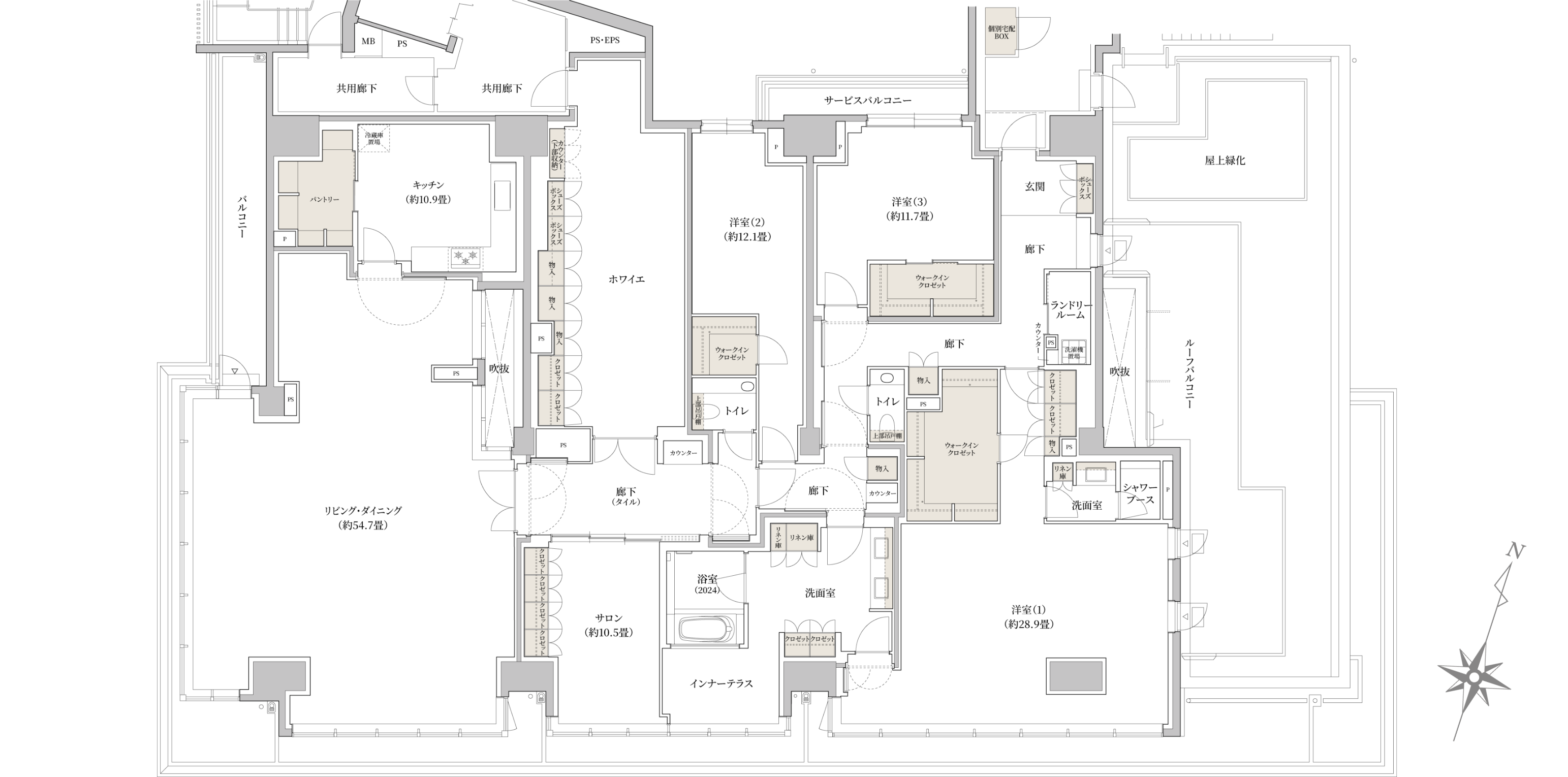
S-H Type

4LDK | 362.80m2

東海エリア最大※1

ゲストをもてなす迎賓の間と、日々に寄り添う静謐な居室。
邸宅の真価を物語る、最上階1フロア1邸。

A Type(3階~12階)

3LDK | 88.27m2

流麗なフォルムで描く 2面彩光のLDK

バルコニーが緩やかに弧を描く。自然光に包まれる贅沢な間取り。

C Type

2LDK | 72.13m2

エントリー者様限定サイトで公開中

E1 Type(4階~10階)

3LDK | 116.22m2

美と寛ぎを極めた3LDK+WIC

ひと目で心を奪うアイランドキッチンと、
寛ぎを包む広々としたリビング。

G Type

3LDK | 98.79m2

エントリー者様限定サイトで公開中

NEW

S-E Type

3LDK | 195.65m2

エントリー者様限定サイトで公開中

S-F Type

3LDK | 227.68m2

日常を舞台に変える空間設計

52畳超のリビングダイニングキッチン。
洗面室付きの寝室は、特別な私領域。

※1「東海エリア最大」とは、2003年以降に供給された新築分譲マンションのうち、本プロジェクトのS-Hタイプ住戸が最も住居専有面積が広い住戸であることを表現しております。(2025年7月 株式会社マーキュリー調べ)
※掲載の外観完成予想CGは現地約36m(13階相当)の高さより西方向を撮影した写真(2025年7月撮影)に計画段階の図面を基に描き起こした建物完成予想図を合成し、CG加工したもので、実際とは異なります。
また、変更となる場合がございます。雨樋、給気口、スリーブ等、一部再現されていない設備機器がございます。また、タイル・石貼等の大きさは実際とは異なります。
※掲載の間取り図は計画段階のもので、今後変更になる場合がございます。